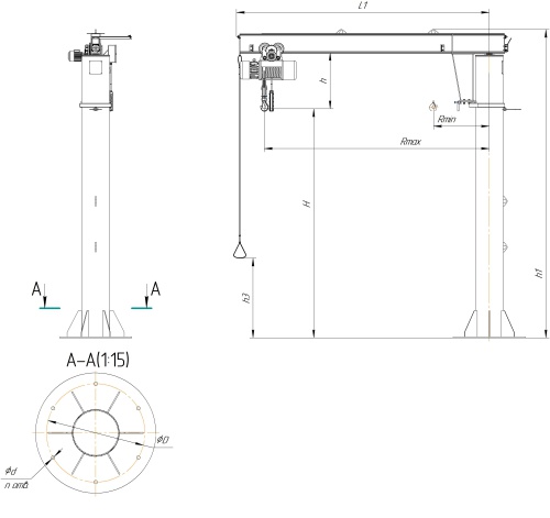
Кран консольный стационарный ручной на колонне тип ККР 3 — 3,2 тонны
Характеристики
Грузоподъёмность, т
—
3,2 тонны
Высота подъема, м
—
2,0..5,0 м
Вылет Rmax, м
—
3, 4, 5, 6
Угол оборота, град
—
До 360
Напряжение, В
—
380
Режим работы по ИСО
—
А1, А2, А3, А4
Товарные позиции представленные на сайте являются демонстрационными и не отражают конечный вид товара, продукция может быть изготовлена на заказ по индивидуальному запросу
Кран консольный стационарный ручной на колонне тип ККР 3 — 3,2 тонны
Характеристики
|
Грузоподъёмность, т
|
3,2 тонны |
|
Высота подъема, м
|
2,0..5,0 м |
|
Вылет Rmax, м
|
3, 4, 5, 6 |
|
Угол оборота, град
|
До 360 |
|
Напряжение, В
|
380 |
|
Режим работы по ИСО
|
А1, А2, А3, А4 |
|
Угол поворота
|
До 360 град. |
|
Вылет стрелы
|
2,0..5,0 м |
Краны консольные позволяют производить подъемно-транспортные операции на отдельных участках производственных помещений. Вращение консоли может происходить как вручную (потягиванием за цепь или канат, закрепленный на конце стрелы)- тип ККР3, так и при помощи электропривода – тип ККМ7. Кран консольный может быть оснащен талью любого типа (ручная или электрическая (канатная или цепная)).
Возможно изготовление крана с параметрами и опциями по техническому заданию заказчика, а также в пожаробезопасном и взрывобезопасном исполнениях.
Возможно изготовление крана с параметрами и опциями по техническому заданию заказчика, а также в пожаробезопасном и взрывобезопасном исполнениях.
Документы
Фотогалерея
1/2
—
